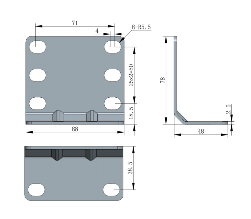
BK002